Ultimo Piano Via Goito
  • 2.200 €/mese

· In Sintesi

Rif.: AG1
  • AG1
  • Rif.
  • 125 Mq²
  • Superficie
  • 3
  • Cam. Letto
  • 2
  • Bagni
  • 20 Mq²
  • Spazio Est.
  • 200/mese
  • Spese Condo.
  • Centr. Cont.Cal.
  • Riscaldamento

· Descrizione

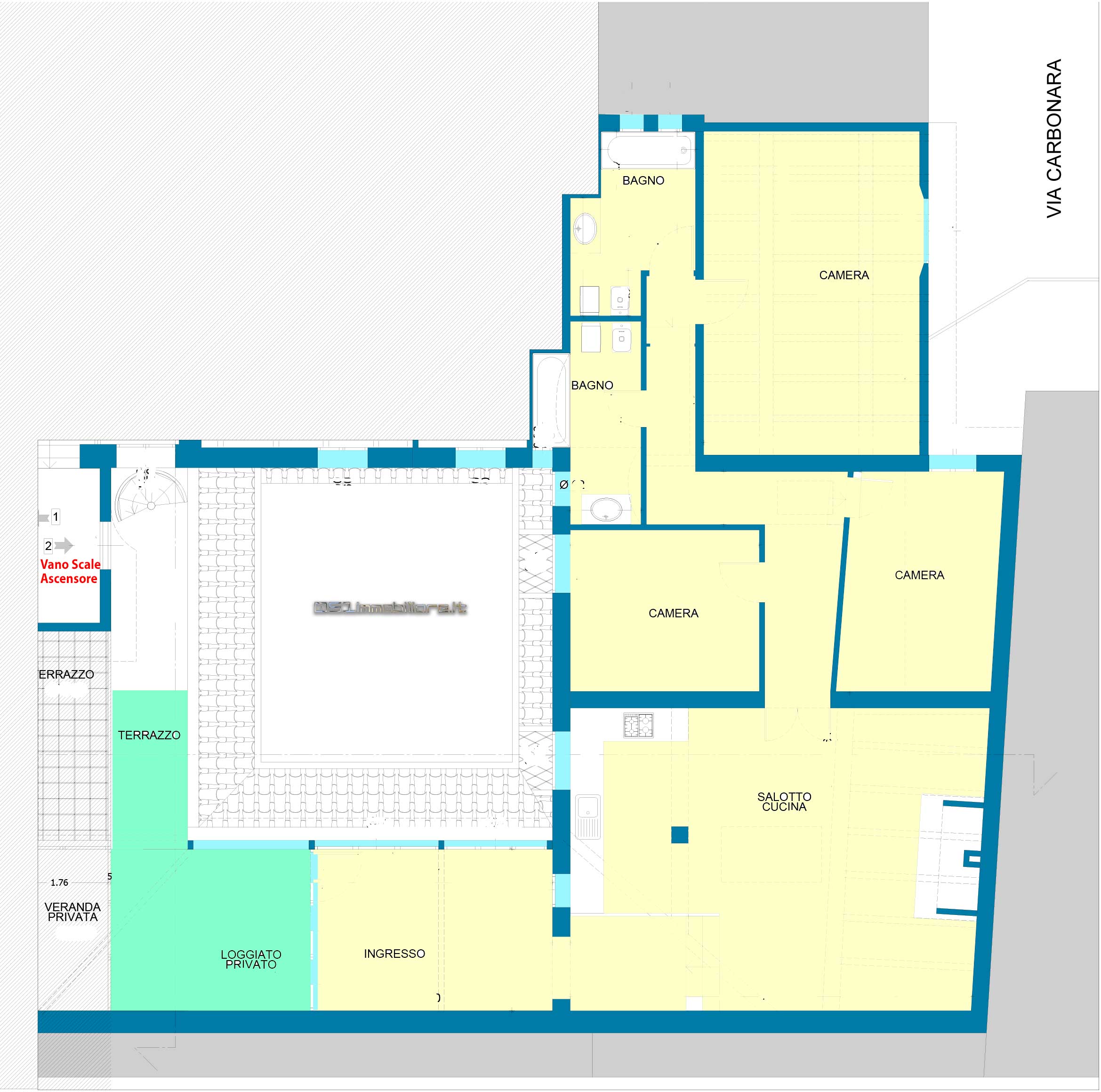
Situato al secondo ed ultimo piano , servito da ascensore, questo ampio appartamento parzialmente arredato accoglie i suoi ospiti in un’atmosfera d’altri tempi, dove i soffitti a cassettoni e il maestoso camino della zona giorno diventano i protagonisti assoluti dello spazio.

L’ambiente principale, arioso e luminoso, integra armoniosamente la cucina a vista e si apre verso un grande terrazzo loggiato, ideale per ritagliarsi momenti di relax o per cenare all’aperto in totale privacy. Un funzionale disimpegno introduce alla zona notte, composta da tre camere da letto e due bagni, entrambi finestrati per garantire la massima luminosità naturale.

...Continua a leggere >

· Informazioni

  • Rif. AG1
  • Prezzo 2.200 €/mese
  • Dimensioni 125 Mq²
  • Spazio Est. 20 Mq²
  • Cam. Letto 3
  • Bagni 2
  • Anno Costr. 1700
  • Tipo Appartamento
  • Contratto Riservato
  • Spese Condo. 200/mese
  • Riscaldamento Centr. Cont.Cal.
  • Altezza Piano 2
  • Totale Piani 2
  • Condizioni Buono Stato
  • Disponibilita' Subito

· Planimetrie

  • Indirizzo: Via Goito
  • Città: Bologna
  • Quartiere: Centro Storico

· Classe Energetica

  • Classe En. : F
  • A4
  • A3
  • A2
  • A1
  • B
  • C
  • D
  • E
  • | Classe : F
    F
  • G
• L'utilizzo, anche parziale, del/i marchio o di immagini in questo sito, e' VIETATO e deve essere espressamente autorizzato da 051 Immobiliare® •